LA POSTE PARIS BRUNE
PARIS, ÎLE-DE-FRANCE
LA POSTE PARIS BRUNE
PARIS, ÎLE-DE-FRANCE
Une rehabilitation en site occupé
L’intervention prend place au sein d’un bâtiment existant des années 90 occupé par différents services de la Poste. Il s’agit de réaffecter un plateau de tri postal afin de créer un espace tertiaire pour la Direction du Courrier de la Poste. Il s’agit d’une parcelle composée de différentes sous-entités volumétriques et d’une imbrication de construction. La variété programmatique du site et la dominante forte portée par le Groupe la Poste donnent un caractère particulier à l’activité du site.

Une rehabilitation en site occupé
L’intervention prend place au sein d’un bâtiment existant des années 90 occupé par différents services de la Poste. Il s’agit de réaffecter un plateau de tri postal afin de créer un espace tertiaire pour la Direction du Courrier de la Poste. Il s’agit d’une parcelle composée de différentes sous-entités volumétriques et d’une imbrication de construction. La variété programmatique du site et la dominante forte portée par le Groupe la Poste donnent un caractère particulier à l’activité du site.

Lieu | Paris, FR
Maîtrise d’ouvrage | Poste Immo
Architectes | 5+1AA
Équipe projet | Femia, Cenci, Peluffo, Spinetto
Bureau d’étude | Quadriplus (Structure, Fluides), Bureau Michel Forgue (économie) , Oasiis (HQE)
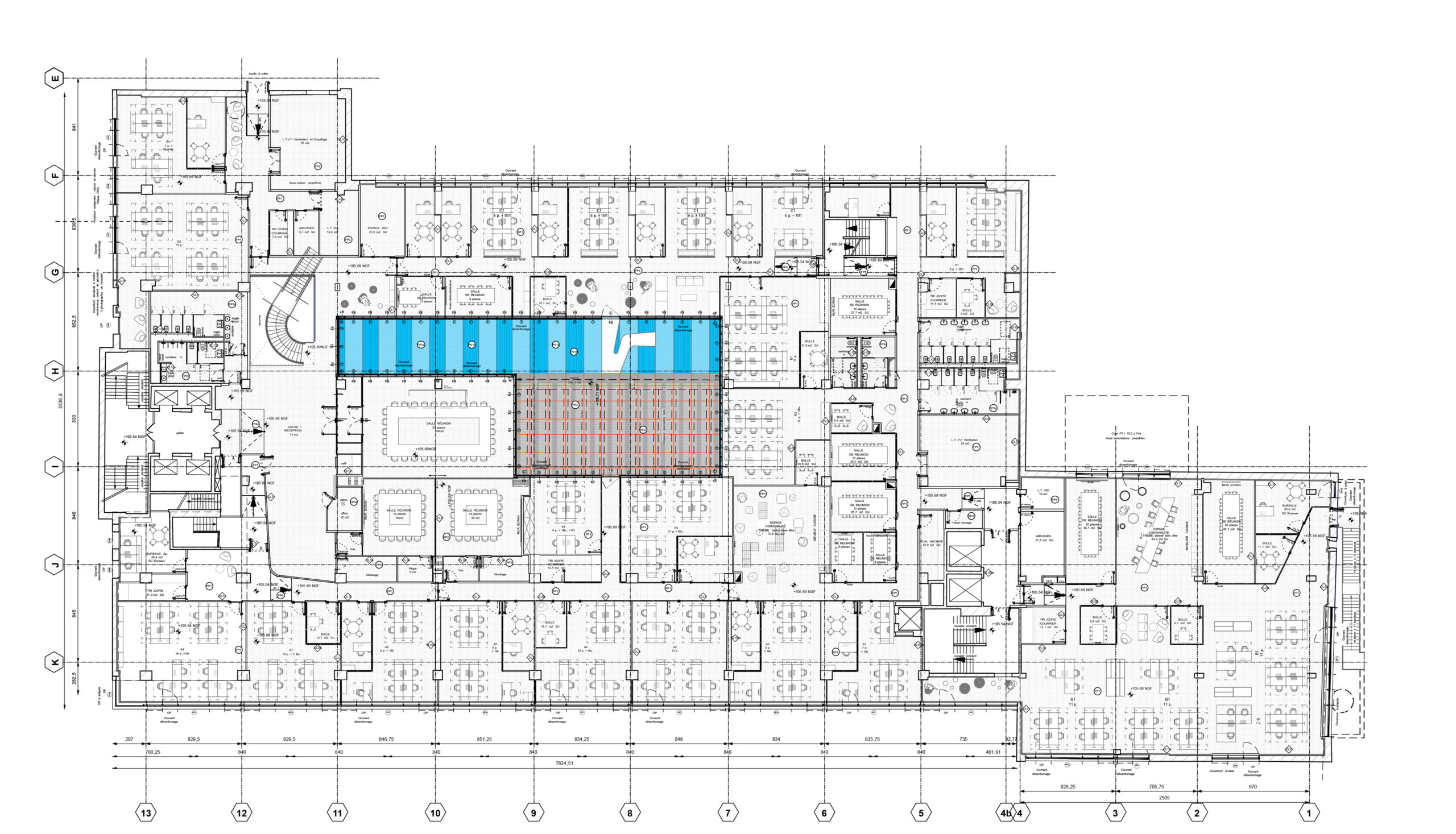
Programme | Restructuration partielle de la Poste Brune : restructuration d’une zone de tri postal pour la création de 250 postes de travail, un auditorium, un nouveau patio et l’aménagement d’une terrasse. Réaménagement du rez-de-chaussée et du sous-sol : création d’une cafétéria et de salles de réunion, modification des accès. Réorganisation des étages : création de salles de réunion plus confidentielles, d’espaces de service (tri-copie, courrier) et de convivialité.
Surface | XXX m²
Coût | 11 M€ HT
Calendrier | Livraison 2017
Photographies | Luc Boegly
L’intervention prend place au sein d’un bâtiment existant des années 90 occupé par différents services de la Poste. Il s’agit de réaffecter un plateau de tri postal afin de créer un espace tertiaire pour la Direction du Courrier de la Poste.
La Poste Brune du 14ème arrondissement de Paris se situe à proximité du périphérique sud parisien.
Il s’agit d’une parcelle composée de différentes sous-entités volumétriques et d’une imbrication de construction. La variété programmatique du site et la dominante forte portée par le Groupe la Poste donnent un caractère particulier à l’activité du site.
Le lieu vit au rythme de l’activité postale : service de distribution du courrier (le matin tôt jusqu’à midi) pour les étages inférieurs et service tertiaire pendant la journée (en étage du R+2 au R+7). De par la stratification verticale des programmes, le niveau à réhabiliter se trouve entre des activités différentes : transbordement postal / bureaux.
Le projet créé une unité dans la variété d’activité du lieu, de manière à minimiser les nuisances d’une telle cohabitation. Il s’agit d’exploiter les paramètres spécifiques du bâtiment : masse construite, inertie de la structure, hauteurs disponibles, résistance des planchers…
Les besoins exprimés par la Direction du Courrier de la Poste pour l’immeuble Brune sont :
· Amélioration du fonctionnement des équipements de l’immeuble
· Réaménagement des espaces publics de l’immeuble intégrant la création d’un auditorium
· Réaménagement d’un plateau « d’exploitation de tri postal » en bureaux
· Valorisation des espaces extérieurs (terrasse) pour le co-working et la détente.
Ce dernier point joue un rôle majeur dans l’équilibre du projet. La création du patio et l’aménagement possible d’une terrasse remettent en question l’intégration paysagère des espaces extérieurs tout en ouvrant le champ des possibles dans la création d’un espace tertiaire de qualité. Ce remaniement spatial offre un apport de lumière naturelle, de nouveaux espaces extérieurs et la création d’un paysage comme nouveau cœur de vie du bâtiment.
Cette intervention s’accompagne d’une réorganisation du hall (rez-de-chaussée et sous-sol) afin de créer un lieu de vie au R-1 en intégrant dans la réflexion l’ouverture de la conciergerie, de la cafétéria et des espaces de restauration réservés, la transformation du foyer des salles de réunion avec la création d’espace nomade, l’intégration de l’escalier entre le RDC et le R+1.
De même, chaque étage a été ponctuellement reconfiguré afin d’y trouver les espaces types de chaque bâtiment du Groupe Village La Poste : point de convivialité, espaces copies, bulles et espaces d’échanges informels.
Lieu | Paris, FR
Maîtrise d’ouvrage | Poste Immo
Architectes | 5+1AA
Équipe projet | Femia, Cenci, Peluffo, Spinetto
Bureau d’étude | Quadriplus (Structure, Fluides), Bureau Michel Forgue (économie) , Oasiis (HQE)
Programme | Restructuration partielle de la Poste Brune : restructuration d’une zone de tri postal pour la création de 250 postes de travail, un auditorium, un nouveau patio et l’aménagement d’une terrasse. Réaménagement du rez-de-chaussée et du sous-sol : création d’une cafétéria et de salles de réunion, modification des accès. Réorganisation des étages : création de salles de réunion plus confidentielles, d’espaces de service (tri-copie, courrier) et de convivialité.
Surface | XXX m²
Coût | 11 M€ HT
Calendrier | Livraison 2017
Photographies | Luc Boegly
L’intervention prend place au sein d’un bâtiment existant des années 90 occupé par différents services de la Poste. Il s’agit de réaffecter un plateau de tri postal afin de créer un espace tertiaire pour la Direction du Courrier de la Poste.
La Poste Brune du 14ème arrondissement de Paris se situe à proximité du périphérique sud parisien.
Il s’agit d’une parcelle composée de différentes sous-entités volumétriques et d’une imbrication de construction. La variété programmatique du site et la dominante forte portée par le Groupe la Poste donnent un caractère particulier à l’activité du site.
Le lieu vit au rythme de l’activité postale : service de distribution du courrier (le matin tôt jusqu’à midi) pour les étages inférieurs et service tertiaire pendant la journée (en étage du R+2 au R+7). De par la stratification verticale des programmes, le niveau à réhabiliter se trouve entre des activités différentes : transbordement postal / bureaux.
Le projet créé une unité dans la variété d’activité du lieu, de manière à minimiser les nuisances d’une telle cohabitation. Il s’agit d’exploiter les paramètres spécifiques du bâtiment : masse construite, inertie de la structure, hauteurs disponibles, résistance des planchers…
Les besoins exprimés par la Direction du Courrier de la Poste pour l’immeuble Brune sont :
· Amélioration du fonctionnement des équipements de l’immeuble
· Réaménagement des espaces publics de l’immeuble intégrant la création d’un auditorium
· Réaménagement d’un plateau « d’exploitation de tri postal » en bureaux
· Valorisation des espaces extérieurs (terrasse) pour le co-working et la détente.
Ce dernier point joue un rôle majeur dans l’équilibre du projet. La création du patio et l’aménagement possible d’une terrasse remettent en question l’intégration paysagère des espaces extérieurs tout en ouvrant le champ des possibles dans la création d’un espace tertiaire de qualité. Ce remaniement spatial offre un apport de lumière naturelle, de nouveaux espaces extérieurs et la création d’un paysage comme nouveau cœur de vie du bâtiment.
Cette intervention s’accompagne d’une réorganisation du hall (rez-de-chaussée et sous-sol) afin de créer un lieu de vie au R-1 en intégrant dans la réflexion l’ouverture de la conciergerie, de la cafétéria et des espaces de restauration réservés, la transformation du foyer des salles de réunion avec la création d’espace nomade, l’intégration de l’escalier entre le RDC et le R+1.
De même, chaque étage a été ponctuellement reconfiguré afin d’y trouver les espaces types de chaque bâtiment du Groupe Village La Poste : point de convivialité, espaces copies, bulles et espaces d’échanges informels.








