PAVILLON D’ACCUEIL TEMPORAIRE ET ITINÉRANT
CANNES, ALPES-MARITIMES
PAVILLON D’ACCUEIL TEMPORAIRE ET ITINÉRANT
CANNES, ALPES-MARITIMES
UN PROJET MONTÉ EN 4 JOURS
Implanté devant les célèbres marches du Palais du Festival de Cannes, ce pavillon temporaire a été créé pour le festival du MIPCOM. Conçu pour être démontable, ce stand XXL sera reconstruit chaque année pour cet évènement majeur rassemblant tous les professionnels de l’audiovisuel.

UN PROJET MONTÉ EN 4 JOURS
Implanté devant les célèbres marches du Palais du Festival de Cannes, ce pavillon temporaire a été créé pour le festival du MIPCOM. Conçu pour être démontable, ce stand XXL sera reconstruit chaque année pour cet évènement majeur rassemblant tous les professionnels de l’audiovisuel.


4 BARRES, POINT BARRE
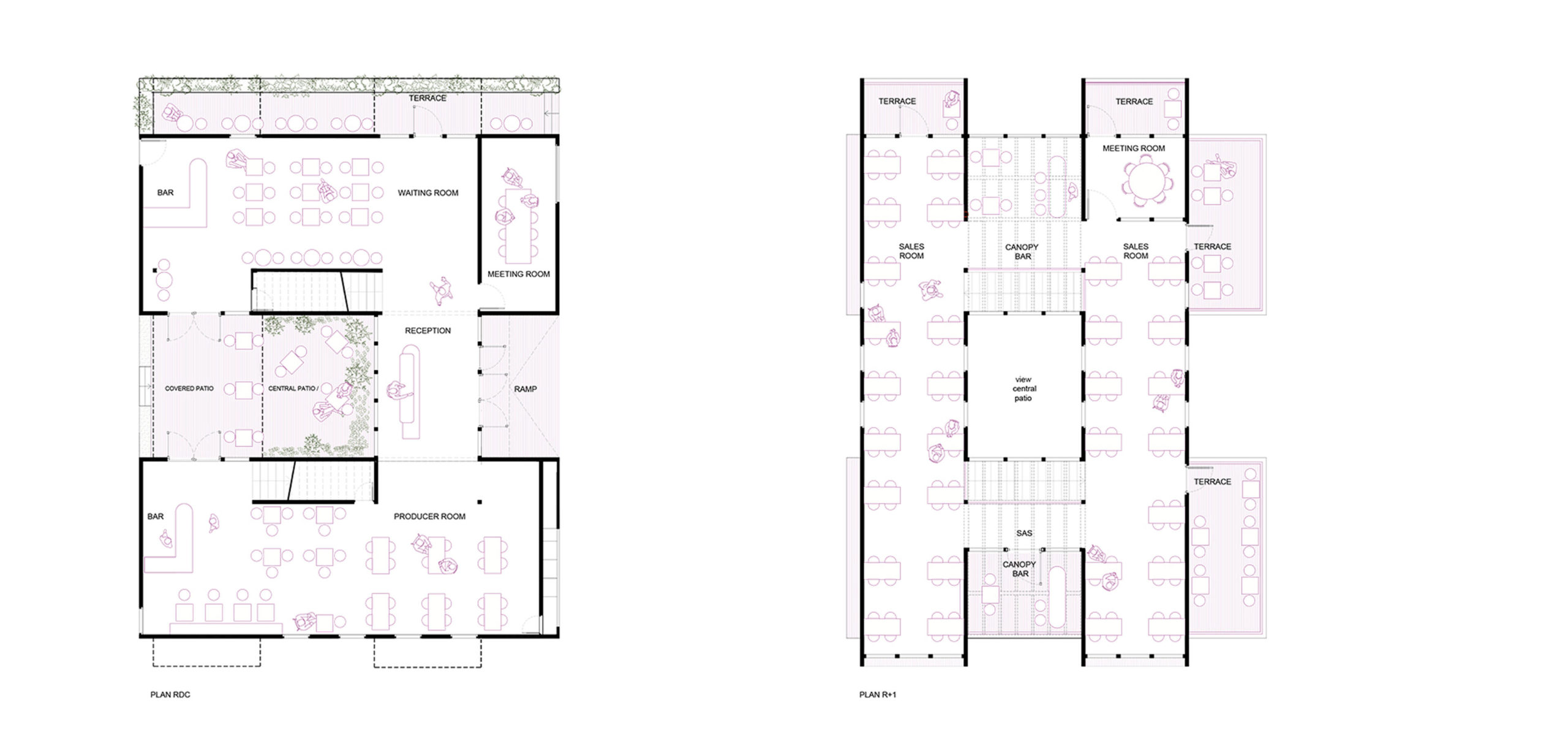
Construit autour du patio végétalisé, ce bâtiment éphémère se compose de quatre volumes superposés deux à deux, reliés par deux verrières en bois et Danpalon. Cette composition offre des jeux de transparences et de multiples cadrages sur l’architecture balnéaire cannoise et sa végétation luxuriante.

4 BARRES, POINT BARRE
Construit autour du patio végétalisé, ce bâtiment éphémère se compose de quatre volumes superposés deux à deux, reliés par deux verrières en bois et Danpalon. Cette composition offre des jeux de transparences et de multiples cadrages sur l’architecture balnéaire cannoise et sa végétation luxuriante.
NE RIEN LAISSER AU HASARD
L’ensemble du projet a été dessiné en 3D et préfabriqué en amont pour respecter les délais très courts de montage et éviter ainsi les écueils du chantier. Les éléments structurels ont été assemblés sur place par simple vissage, afin d’être démontés et remontés facilement par la suite.

NE RIEN LAISSER AU HASARD
L’ensemble du projet a été dessiné en 3D et préfabriqué en amont pour respecter les délais très courts de montage et éviter ainsi les écueils du chantier. Les éléments structurels ont été assemblés sur place par simple vissage, afin d’être démontés et remontés facilement par la suite.

Lieu | Cannes, 06400, FR
Maîtrise d’ouvrage | Banijay
AMO | Orati
Architectes | Nicola Spinetto Architectes
Équipe projet | Chef de projet Coline Fidon (APS) et Morgan Moreau (APD, PRO , chantier)
Bureau d’étude | EBB Étude Bois du Barrois (structure bois)
Entreprise bois | Novawood System (Benoit Legouge, Gilles Cluzel, Jean Claude Legouge) Franck Durrieux Olivier Bosson Jean Marchand Charpente (Louis et Thomas Marchand) Forez Bois Construction (Luc Juban) Construibois (Barazer Stephane) Lesage Construction Bois (Mickael Lesage) Ronan Prud’Homme
Programme | Pavillon d’accueil, éphémère et remontable en 5 jours en CLT espace d’accueil, de vente, salle de réunion et bar
Surface | 350m² SDP + 150m² de Terrasse
Coût | 470 K€ HT (structure et façades) + 150 K€ HT (montage, démontage, stockage)
Calendrier | Livré en octobre 2022
Photographies | Sergio Grazia
Implanté devant les célèbres marches du Palais du Festival de Cannes, ce pavillon temporaire a été créé pour le festival du MIPCOM. Conçu pour être démontable, ce stand XXL sera reconstruit chaque année pour cet événement majeur rassemblant tous les professionnels de l’audiovisuel.
Construit autour du patio végétalisé, ce bâtiment éphémère se compose de quatre volumes superposés deux à deux, reliés par des verrières. Cette composition offre des jeux de transparences et de multiples cadrages sur l’architecture balnéaire cannoise et sa végétation luxuriante.
L’ensemble du projet a été dessiné en 3D et préfabriqué en amont pour respecter les délais très courts de montage et éviter ainsi les écueils du chantier. Les éléments structurels ont été assemblés sur place par simple vissage, afin d’être démontés et remontés facilement par la suite.
Lieu | Cannes, 06400, FR
Maîtrise d’ouvrage | Banijay
AMO | Orati
Architectes | Nicola Spinetto Architectes
Équipe projet | Chef de projet Coline Fidon (APS) et Morgan Moreau (APD, PRO , chantier)
Bureau d’étude | EBB Étude Bois du Barrois (structure bois)
Entreprise bois | Novawood System (Benoit Legouge, Gilles Cluzel, Jean Claude Legouge) Franck Durrieux Olivier Bosson Jean Marchand Charpente (Louis et Thomas Marchand) Forez Bois Construction (Luc Juban) Construibois (Barazer Stephane) Lesage Construction Bois (Mickael Lesage) Ronan Prud’Homme
Programme | Pavillon d’accueil, éphémère et remontable en 5 jours en CLT espace d’accueil, de vente, salle de réunion et bar
Surface | 350m² SDP + 150m² de Terrasse
Coût | 470 K€ HT (structure et façades) + 150 K€ HT (montage, démontage, stockage)
Calendrier | Livré en octobre 2022
Photographies | Sergio Grazia
Implanté devant les célèbres marches du Palais du Festival de Cannes, ce pavillon temporaire a été créé pour le festival du MIPCOM. Conçu pour être démontable, ce stand XXL sera reconstruit chaque année pour cet événement majeur rassemblant tous les professionnels de l’audiovisuel.
Construit autour du patio végétalisé, ce bâtiment éphémère se compose de quatre volumes superposés deux à deux, reliés par des verrières. Cette composition offre des jeux de transparences et de multiples cadrages sur l’architecture balnéaire cannoise et sa végétation luxuriante.
L’ensemble du projet a été dessiné en 3D et préfabriqué en amont pour respecter les délais très courts de montage et éviter ainsi les écueils du chantier. Les éléments structurels ont été assemblés sur place par simple vissage, afin d’être démontés et remontés facilement par la suite.










